A louer :
- Commune : Saint-Crépin
- Type de bien : Appel à manifestation d’intérêt pour la mise à disposition du bar-restaurant de la maison de l’air à l’aérodrome de Mont-Dauphin – Saint Crépin. Le Département a engagé des travaux sur ce bâtiment durant l’année 2025 en vue d’aménager un espace en un bar-restaurant dans l’objectif de le mettre à disposition du candidat ayant présenté le meilleur projet.
- Prix :
- Minimum annuel : 6 300 € (loyer non soumis à TVA) :
- Au-delà de ce minimum, les candidats devront proposer une redevance complémentaire : soit fixe, soit proportionnelle au chiffre d’affaires annuel (plus d’infos dans le cahier des charges).
- Superficie :
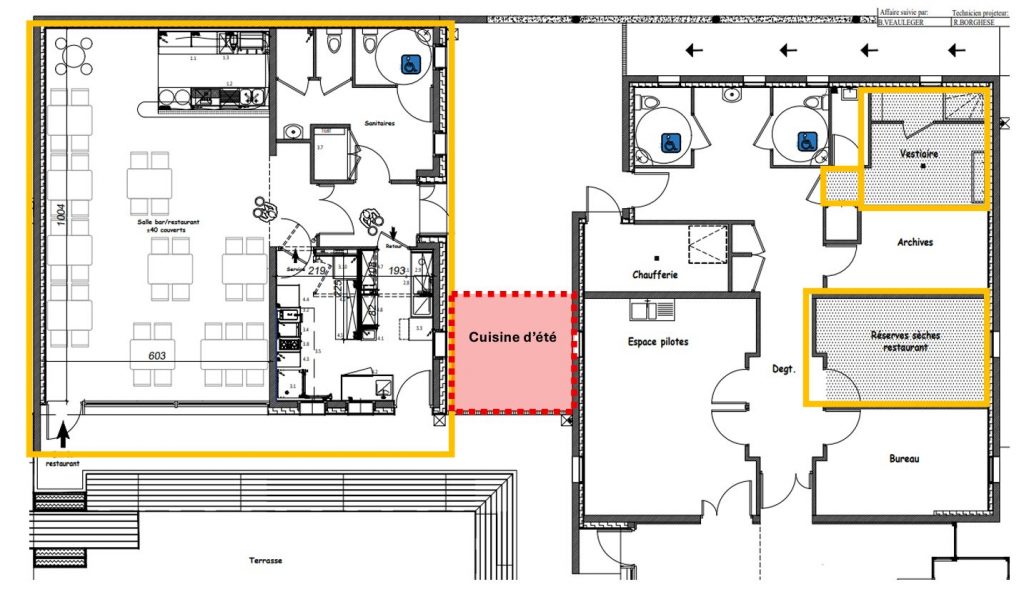
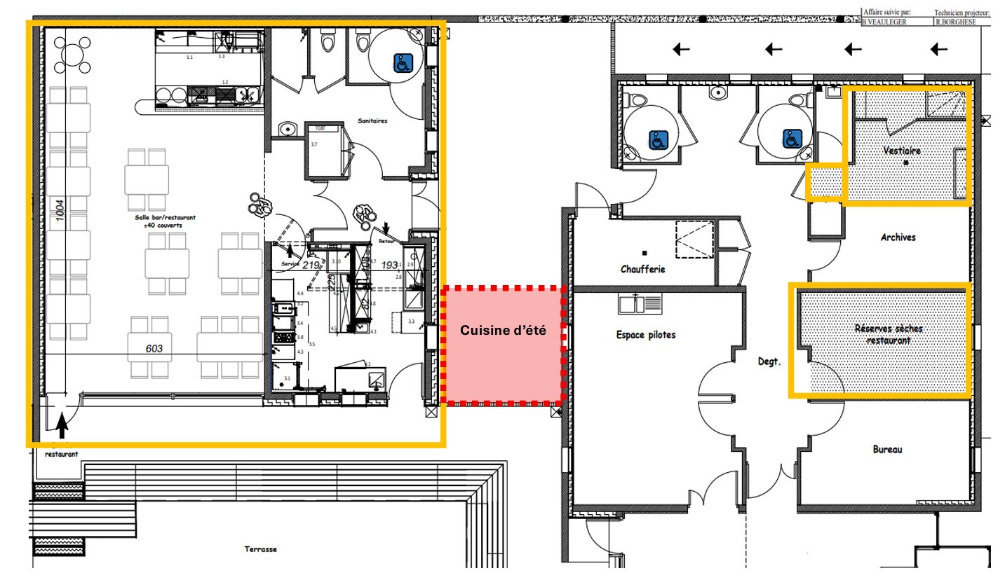
- une salle de bar-restaurant d’une superficie de 60,50 m², soit environ 40 couverts,
- une cuisine d’une superficie de 17 m²,
- un sas d’une superficie de 4,50 m²,
- des sanitaires d’une superficie de 14,50 m²,
- un local « ménage » d’une superficie de 3 m²,
- dans l’espace de la maison de l’air : un local pour les réserves sèches de 12 m², ainsi qu’un
vestiaire de 14 m² - une terrasse de 150 m²
- une cuisine extérieur/d’été
- Réseaux présents : Eau, électricité, téléphone
- Autres informations :
- Accès PMR
- Bien situé dans une zone classée France Ruralité Revitalisation (FRR) pouvant ouvrir droit à des exonérations fiscales et sociales.
- Date limite de réception des offres : Mercredi 20 mai 2026 à 12h.
- Pour en savoir plus, consultez le cahier des charges ICI
- Pour des photos et plans, consultez l’état des lieux
Contact :
- Pour obtenir tous renseignements complémentaires sur le dossier, il conviendra d’adresser une demande écrite ou par courriel à : add-fi@hautes-alpes.fr
- Bien visitable sur rendez-vous en contactant Raymond Borghese (06 70 37 97 18) ou Bertrand Veauleger (06 30 80 85 56).
Responsabilité et limites du service : La bourse à l’immobilier professionnel constitue un service de mise en relation entre des offres et des demandes de locaux professionnels et de fonds de commerce, ayant pour objet de faciliter l’installation de porteurs de projets ainsi que la transmission d’activités économiques. La Communauté de communes intervient uniquement en qualité d’intermédiaire et ne saurait garantir l’exactitude, l’exhaustivité ou l’actualisation des informations communiquées. Elle ne peut en aucun cas être tenue responsable du contenu des annonces, des décisions prises par les utilisateurs du service, ni des conséquences résultant des transactions, négociations ou relations contractuelles engagées entre les parties.


